0
Skip to Content
Design
Build
Stage
Create
Lily
Open Menu
Close Menu
Design
Build
Stage
Create
Lily
Open Menu
Close Menu
Design
Build
Stage
Create
Lily
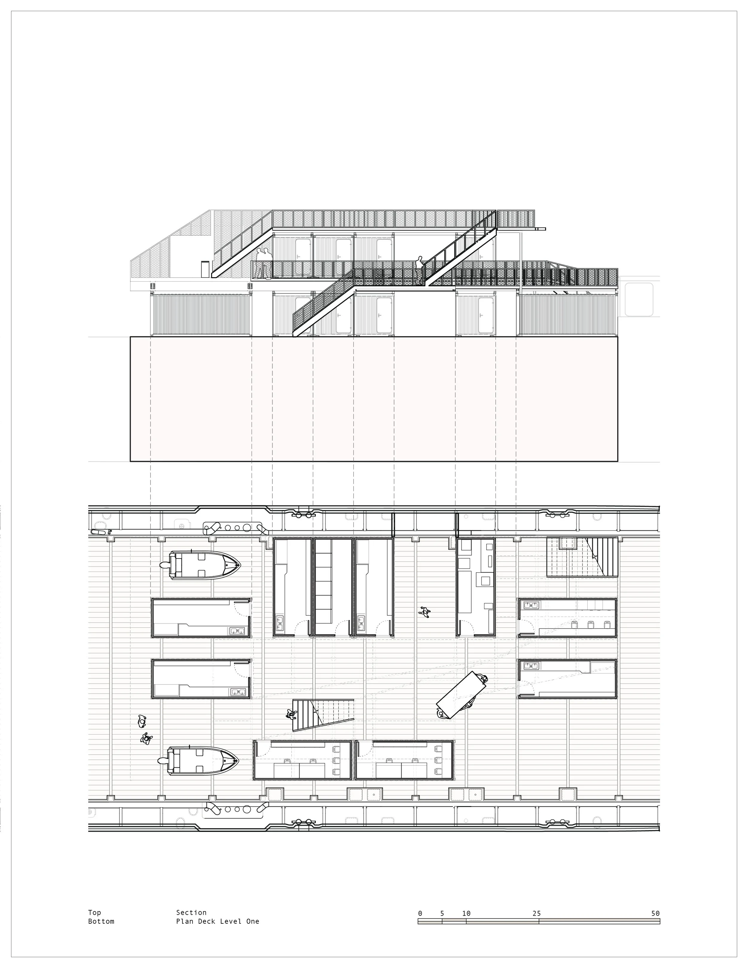
SHIPHAB.
An oceanic research facility.
Next
Next
Pockets